Transportable Homes Delivered Across The North Island

Gill

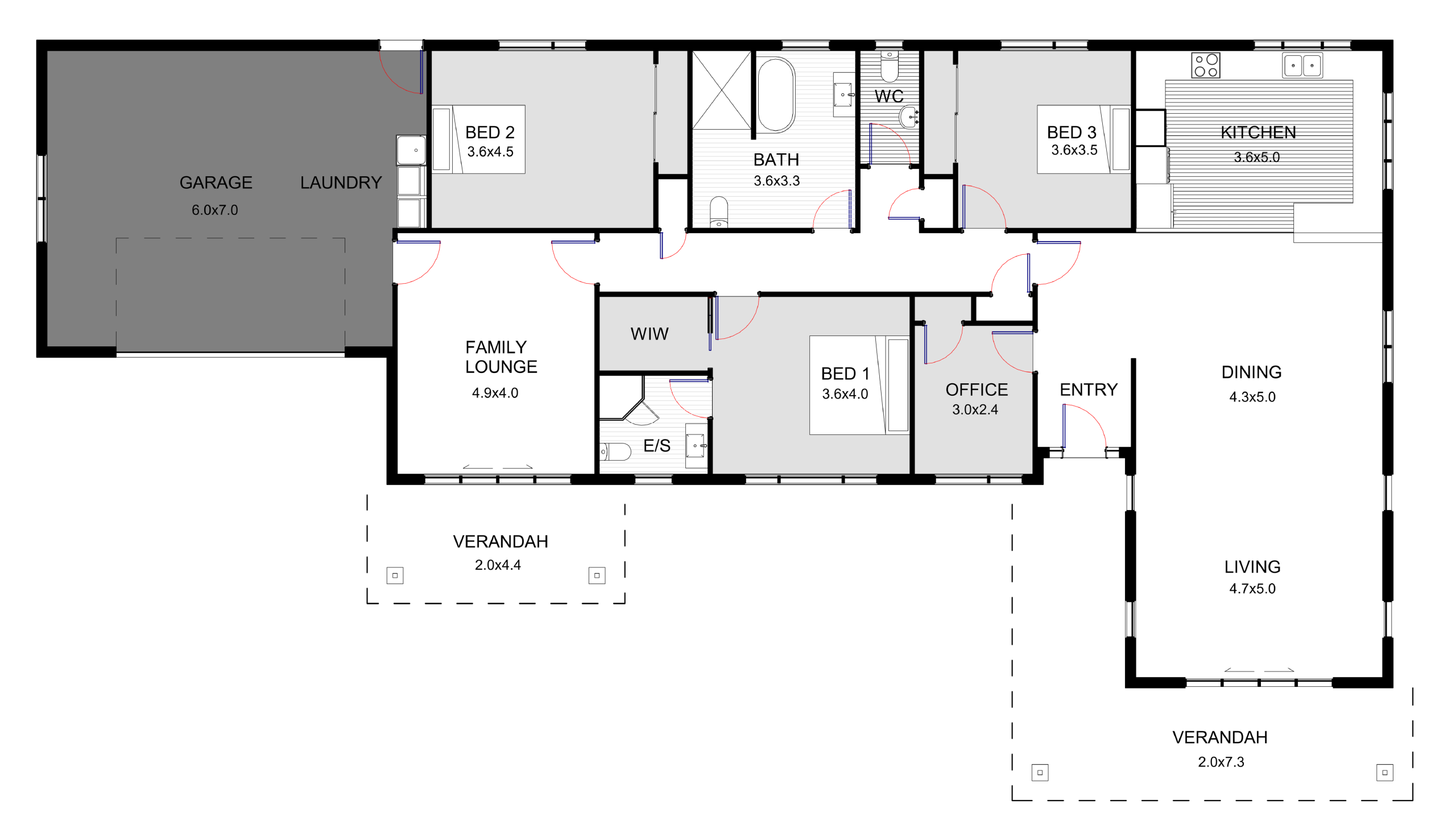
3
2
1
250m²

Please note that these specifications are the standard for our on‐site build homes.
Each contracted build can be individually tailored to meet your needs.

Please do not hesitate to suggest any changes you may have in mind.

Download brochure

Features

Documents Included

Council building permit, plans & specs provided.

Exterior

Subfloor

Branderson homes concrete floor featuring rib-raft structure.

Exterior Cladding

Selected NZ brick cladding.

Framing

90 x 45 H1.2 treated.

Fascia

Longrun colorsteel.

Roofing

Long run coloursteel corrugated iron or styline profile.

Windows

Tasman powder coated double glazed aluminium joinery.

Paint

Tasman powder coated double glazed aluminium joinery.

Interior

Flooring

Norman ellison dalton carpet range & polyflor vinyl ranges

Door Hardware

Windsor futura apex lever range

Doors

Pre-hung Hume primecoat mdf flush in slim-line jambs & doorstops—grooved option

Linings

Elephant 10mm plasterboard & elephant 10mm aquaboard

Plastering

Level 4 - paint finish

Cornice

75mm gib cove classic

Skirting

60mm FJ bevelled edge & 60mm FJ pine architraves

Shelving

16mm white pbd / lumberlok closet rails / 112x18mm FJ pine slats in H.W.C

Insulation

Ceilings

Earthwool R6.6

Walls

Earthwool R2.6

Bathroom

Shower

Acrylic shower unit—size & shape dictated by plan

Toilet

Raymore Atlanta

Bath

Freestanding back-to-wall fiberglass unit

Vanities

Ceramic topped units, supplied & installed—wall hung or floor mounted

Tapware

Raymore range

Towel Rail

Heated

Heat Unit

2kw wall mounted heater

Extraction Unit

Fan/light unit

Kitchen

Joinery

Prime melamine or bestwood meltecca, water-resitant carcases

Hardware

Heritage hardware range

Benchtops

Prime laminate or formica range

Sink

Stainless Steel Pero 800

Appliances

Dishwasher

Bosch Freestanding

Oven

Bosch electric underbench oven

Hob

Bosch 4 element ceramic cooktop

Extraction Unit

Bosch powerpack extractor or rangehood

Laundry

Tub

Raymor Boston 560mm

Water Heater

Electric 180L mains pressure cylinder

Electrical

Fit-out complete using led lighting. Meter box included. 1 x heat pump included.

Plumbing

Completed and Tested

Request a Quote

Interested to know more about this home? Contact us below to start your build today.

Get in touch
Branderson Homes